Wissenswertes      Bilder      Aktuelles      Geschichte      unsere Ziele      Kontakt      U-Werte      Gesund Wohnen      Impressum      AGB`s     

Startseite


Fenster
Kunststoff-Fenster
Kunststoff-Alu-Fenster
Holz-Fenster
Holz-Alu-Fenster
Aluminium-Fenster


unsere Markenlieferanten
für beste Qualität sind:










        


Holz- Aluminiumfenster

Hier eine Übersicht über die lieferbaren Profilsysteme

Unilux Holz-Aluminiumfenster "Standard"
78 mm Bautiefe
innen schichtverleimtes Massivholz
außen farbige und wetterfeste Aluminium-Deckschale
Doppelfalz
3 umlaufende Dichtungsebene
verdeckt liegender Dreh-Kippbeschlag
lieferbar mit 2-fach Verglasung Ug-Wert 1.1
oder mit 3-fach Verglasung Ug-Wert 0.7
                
Holz-Aluminium Modern Line Holz-Aluminium Living Line
Viele lieferbare Holzarten ermöglichen sehr individuelle Ausführungen der Fenster
z.B. die Holzart Erle mit einer transparenten Oberfläche hat die Optik eines Möbelstückes
Oberflächenbehandlungen ohne Lösungsmittel auf Wasserbasis, in allen RAL-Farben lieferbar, schonen die Umwelt
Die auswechselbare Aluminium Deckschale ist in vielen RAL-Farben und Holzdekoren lieferbar


zurück zu Fenstern

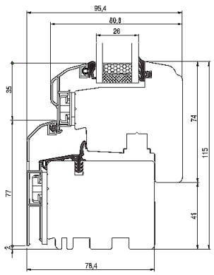
Unilux Holz-Aluminiumfenster "Ultratherm 0.9"
78 mm Bautiefe
innen schichtverleimtes Massivholz mit integriertem Dämmkern
außen farbige und wetterfeste Aluminium-Deckschale
Doppelfalz
3 umlaufende Dichtungsebene
verdeckt liegender Dreh-Kippbeschlag
mit 3-fach Verglasung Ug-Wert 0.7
                
Holz-Alu Ultratherm 0.9 Zeichnung Holz-Aluminiumfenster unten
Viele lieferbare Holzarten ermöglichen sehr individuelle Ausführungen der Fenster
z.B. die Holzart Erle mit einer transparenten Oberfläche hat die Optik eines Möbelstückes
Oberflächenbehandlungen ohne Lösungsmittel auf Wasserbasis, in allen RAL-Farben lieferbar, schonen die Umwelt
Die auswechselbare Aluminium Deckschale ist in vielen RAL-Farben und Holzdekoren lieferbar


zurück zu Fenstern

Unilux Holz-Aluminiumfenster "Ultratherm 0.7"
passivhaustauglich
78 mm Bautiefe
innen schichtverleimtes Massivholz mit integriertem Dämmkern
außen farbige und wetterfeste Aluminium-Deckschale
Doppelfalz
3 umlaufende Dichtungsebene
verdeckt liegender Dreh-Kippbeschlag
mit 3-fach Verglasung Ug-Wert 0.5
                
Holz-Alu Ultratherm 0.7 Zeichnung Holz-Aluminiumfenster unten
Viele lieferbare Holzarten ermöglichen sehr individuelle Ausführungen der Fenster
z.B. die Holzart Erle mit einer transparenten Oberfläche hat die Optik eines Möbelstückes
Oberflächenbehandlungen ohne Lösungsmittel auf Wasserbasis, in allen RAL-Farben lieferbar, schonen die Umwelt
Die auswechselbare Aluminium Deckschale ist in vielen RAL-Farben und Holzdekoren lieferbar


zurück zu Fenstern

Für eine kostenlose Beratung bei Ihnen vor Ort incl. Aufmaß und Angebot vereinbaren Sie bitte mit uns einen Besuchtermin
Für ein Angebot bei uns im Büro / Ausstellung nennen Sie uns bitte die ca.-Maße der gewünschten Fenster
oder weitere Auskünfte per Tel. unter:   05351 / 2440
oder anfragen per E-Mail an:      tischlerei.demuth@t-online.de


3-fach Verglasungen



Die Grundform der 3-fach Gläser besteht aus 3 Stck Floatglas-Einzelscheiben à 4mm Stärke die mit einem Abstand von 12 mm zwischen den Scheiben untrennbar zu einer Einheit mit einer Gesamtstärke von dann 36 mm verbundenen sind.


Schwenkriegel



Schwenkriegel werden zum Verschluß einer Haustür eingesetzt, sind äußerst robust, leichtgängig bedienbar und sollten an jeder Haustür zusätzlich zum Hauptschloß mind. 2 mal vorhanden sein


Für die Sicherheit:
Griff-Olive mit Druckknopf


Diese Griffe lassen Sie nur betätigen bzw. drehen wenn der Knopf gedrückt wird. Das ist eine echte Alternative zu den abschießbaren Griffen



Für die Sicherheit:
Pilzkopf-Verriegelung
mit Sicherheits-Schließblech
im Holzfenster eingebaut


Diese Zusatzausstattung der Dreh-Kipp-Beschläge erhöhen die Sicherheit, sie erschweren das Aufhebeln der Fenster von außen erheblich.